info@americaforveteransfoundation.org
Vancouver, WA

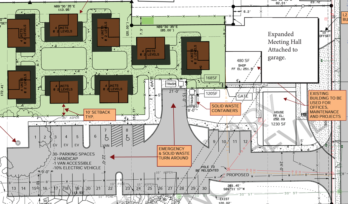
Housing Program

A Safe Place to Live. A Stable Foundation to Heal

America for Veterans Foundation's Housing Program provides stable, secure housing for women veterans experiencing homelessness of housing instability. We believe that housing is the first step toward recovery. Women veterans are not placed in temporary shelters. They are welcomed into real homes with real addresses, lockable doors, and no time limits where they can rebuild their lives with dignity and security.


Donate

Terms of Use - Privacy policies - click here